作品メイン画像

お茶大 SCC(企画・基本設計)

visuals

drawings

process

description

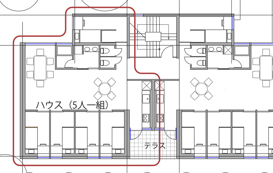
お茶の水女子大学の寮。お茶の水女子大学共創工学部の元岡展久教授と行った新しい女子大の寮の提案である。 多くの学生寮で個室が一般的になる中、ハウスと呼ばれる5人一組で構成された単位で寮生活を営み、さらにハウス長による協議会で SCC全体の運営を行う。全国から集うぞれぞれ生活環境の違いや慣習の違いを理解し合いながら共同生活を行うことで、 地方や地域だけではなく国際社会にも貢献しうる女性を育む寮といえる。

facts

+
所在地
東京都文京区
用 途
学生寮(寄宿舎)
完 成
2011.03
設計・監理
企画・基本設計 :お茶の水女子大学 /元岡展久+河野泰治アトリエ
構造・規模(基本設計時)
構造 :鉄筋コンクリート造
階数 :地上3階、塔屋1階
敷地面積:2,293.71㎡
建築面積: 412.92㎡
延床面積:1,148.78㎡
工程
設計:2009.02 - 2009.06(基本設計時)
竣工:     - 2011.03
受賞・展示他
2011 グッドデザイン賞 お茶大SCC